Arhitectură
Sală de sport Craiova
Performanța renaște prin construcția noul ansamblu sportiv din incinta Universității Craiova
concept
plan situație
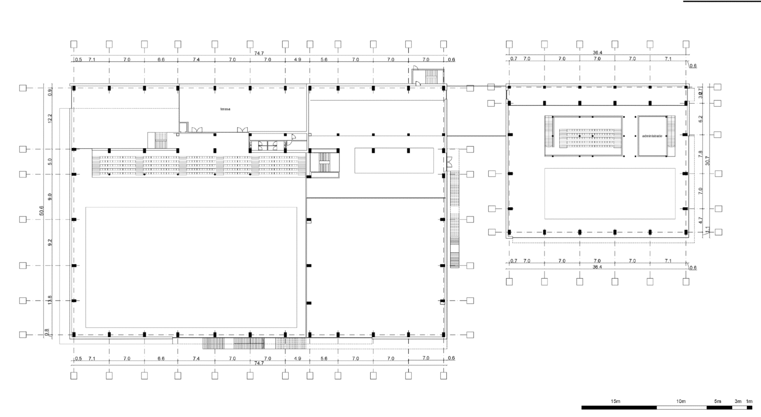
parter
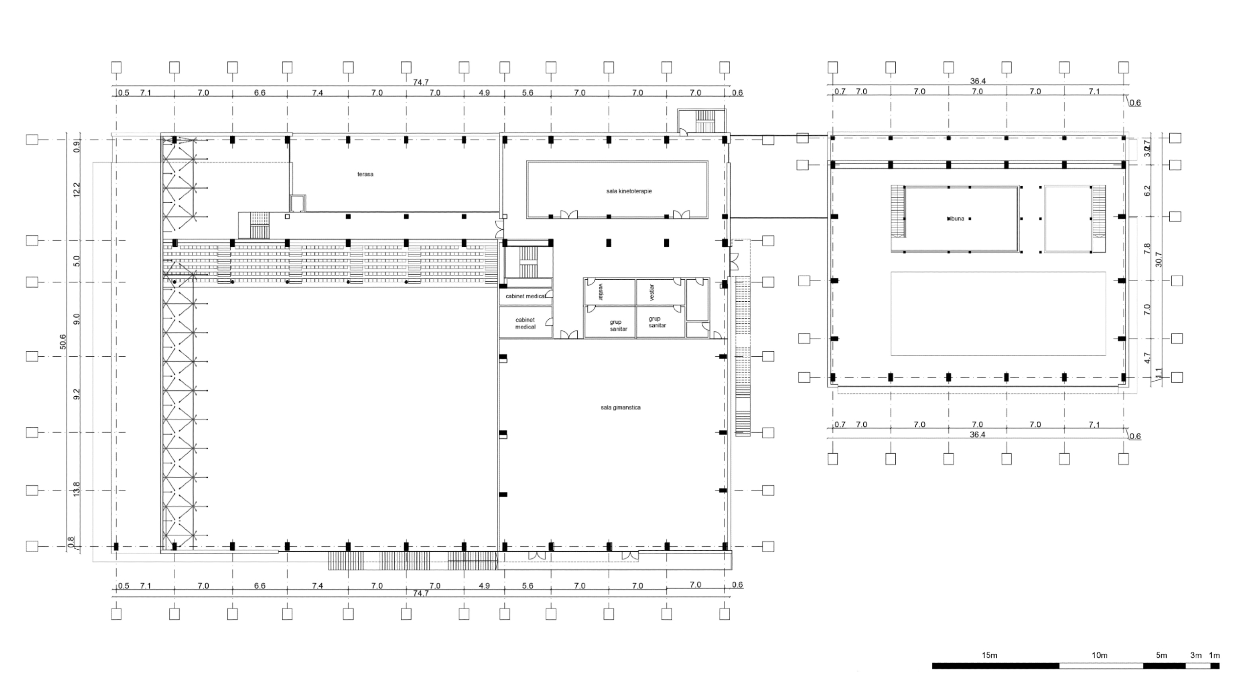
etaj 1
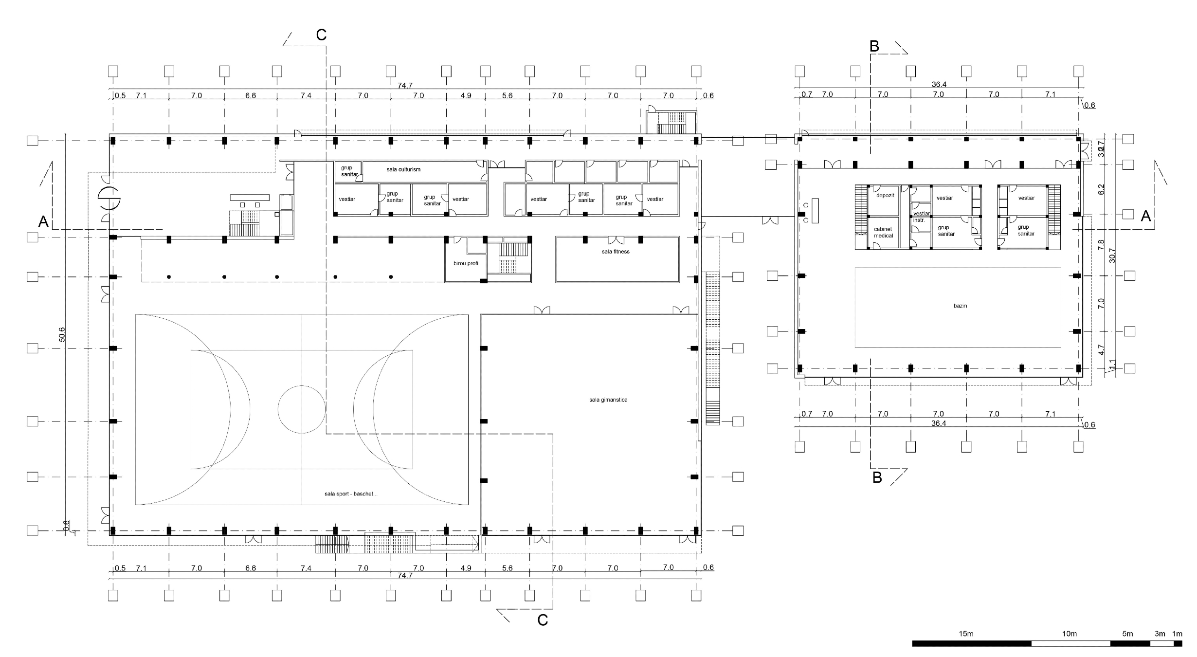
etaj 2
Portofoliu
Acasă
Despre noi
Echipă
Portofoliu